气流分级机 集设计、生产、安装、维护服务于一体

日期:2023-03-01 15:27:42 | 来自:半岛体育 | 浏览次数:767

微信图片_20221229163333.jpg


一、QLF系列分级机工作原理
QLF分级机与进料器、旋风分离器、除尘器、引风机、控制系统组成一套分级系统。物料在负压风作用下通过进料器定量从设备.上方直接进入分级区,在高速旋转的分级涡轮产生的强大离心力作用下,使粗细物料分离,符合粒径要求的细颗粒通过分级轮叶片间隙进入旋风分离器或除尘器收集,粗颗粒夹带部分细颗粒通过撞击风扇在二次风的作用下二次分级,符合粒径要求的细颗粒通过分级轮叶片间隙进入旋风分离器或除尘器收集,粗颗粒通过风扇进入二级分级区,在二次风的作用下,进行第三次
分级。符合粒径的物料通过风扇进入- -级分级区再次分级,达到粒径要求的通过分级叶轮片进入旋风收集器或除尘器,分离后的粗颗粒通过卸料器排出。

二、QLF系列分级机设备特点
1、适用于粉体的精细分级,分级产品的粒度可达D97:5~150微米,产品粒度无级可调, 品种更换极其方便;
2、分级效率高(提取率) 70%~90%;
3、分级精度高,粒度分布窄,彻底杜绝产品中过大颗粒及筛余物;
4、转速低,使用寿命长,相同分级粒径,分级轮转速比其它卧式、立式分级机降低50%。生产莫氏硬度<5的粉体时,分级轮无磨损;生产莫氏硬度27的粉体时,分级轮使用寿命比其它卧式、立式提高5~8倍;
5、采用立式分级涡轮装置,转速低,耐磨损,系统功率配置低;
6、可多级分级机串联使用,同时生产多个粒度段的产品;
7、可与球磨机、振动磨、雷蒙磨等粉磨设备串联使用,组成闭路循环;
8、系统负压生产,无粉尘污染,环境优良,自动化程度高,稳定性强,操作简便。

三、QLF系列气流分级机技术参数
气流分级机参数_03.jpg


四、QLF系列 应用范围
1、(精细化工、陶瓷、磨料及耐火材料)典型的物料有:石榴石、碳化硅、刚玉、氧化铝、碳化硼、碳化钨、金刚砂等;
2、(食品、医药及保健品)典型的物料有:花粉、山楂、珍珠粉、胃药、尼莫地平、抗生素类药物、灵芝、五倍子、何首乌等;
3、(磁粉、手机电磁粉、复印机墨粉及电子材料)典型的物料有:铅蓄电池、镍铬电池、镍锰电池、铁氧体、四氧化三锰、二氧化锰、钴酸锂、锰酸锂、碳等;
4、(非金属矿及粉末冶金)典型的物料有:石英、重晶石、高岭土、重钙、滑石、云母、石墨、硅灰石等;
5、(反光材料、颜料、燃料及粉末涂料)典型的物料有:氧化铁、二氧化钛、玻璃微珠等。


五、QLF系列设备使用及保养
1、电机及时加润滑油以防电机损坏。
2、设备要做好维护保养,不用的时候定期清理腔体以便下次使用。
3、定期检查线路连接,以防线路老化影响设备使用。
4、易损件如有损坏时要及时更换。
5、设备使用时旋风收集器、脉冲除尘器等需要打地脚螺栓的地方必须打地脚螺栓防止振动影响使用。
6、分级机、旋风收集器、脉冲除尘器下方接收集袋。


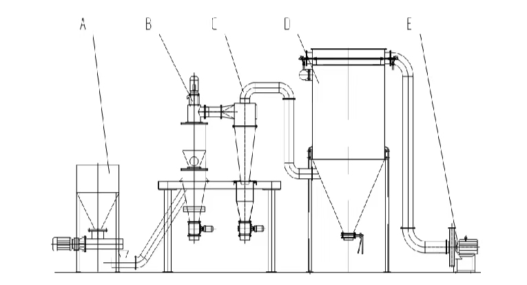
六、QLF系列工艺流程图
气流分级机应用范围_03.jpg

设备工艺:
喂料机(A)一→气流分级机主机(B)→旋风收集器(C)→除尘器(D)→引风机(E

上一篇:没有了! 下一篇:没有了!